Zum Inhalt springen
Mittwoch, 28. Februar 2024

Yva: Ihr exklusives Hausboot auf der Müritz - Ein unvergessliches Hausbootabenteuer auf dem Wasser

Willkommen an Bord von Yva, Ihrem privaten Rückzugsort auf den malerischen Gewässern der Mecklenburgischen Seenplatte. Tauchen Sie ein in einen unvergleichlichen Hausbooturlaub, bei dem Luxus, Komfort und die Schönheit der Natur zu einem einzigartigen Erlebnis verschmelzen.

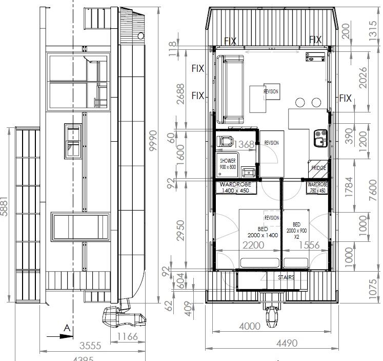
Dieses wunderschöne Hausboot verfügt über zwei Schlafräume. Das Haupt Schlafzimmer ist eine Wohlfühloase mit einem komfortablen Doppelbett (1,40m x 2m), das Platz für süße Träume bietet. Die hochwertige Matratze und stilvolle Einrichtung schaffen eine Atmosphäre der Entspannung. Das zweite Schlafzimmer ist mit einem stabilen Doppelstockbett ausgestattet. Sie werden die aufregende Perspektive vom oberen Doppelstockbett lieben, während Sie sich auf einen erholsamen Schlaf freuen können.

Der offene Wohn- Essbereich lädt zum Verweilen ein und ist mit einem Schlafsofa ausgestattet, dass mit wenig Handgriffen zu zwei weiteren Schlafplätzen umgebaut werden kann. Somit bietet das Hausboot Platz für bis zu 6 Personen.

Des Weiteren befindet sich auf dem Hausboot eine Wohnküche, die über einen Kühlschrank, Gefrierfach, Herd und einem Geschirrspüler verfügt. Die Küche ist mit allem ausgestattet, was Sie für die Zubereitung Ihrer Lieblingsspeisen benötigen. Kochen Sie gemeinsam, genießen Sie Mahlzeiten und tauschen Sie Geschichten aus. Ihnen soll es auf Ihrem Traumhausboot an nichts fehlen.

An Bord befindet sich ein Badezimmer mit WC, Waschtisch und einer Dusche.

Die großzügigen Panoramafenster im offenen Wohn- und Essbereich ermöglichen Ihnen einen atemberaubenden Blick auf die idyllischen Wasserwege der mecklenburgischen Seenplatte mit der Müritz, dem Plauer See, dem Kölpinsee oder auch der Havel. Genießen Sie die Natur aus einer einzigartigen Perspektive.

Für die heißen Sommertage verfügt das Hausboot über eine Klimaanlage.

Für wohlige Wärme ist eine Fußbodenheizung verbaut.

Yva ist mit modernster Technologie ausgestattet, um Ihnen ein sorgenfreies und komfortables Hausbooterlebnis zu bieten. Von Rückfahrkamera bis zur Unterhaltungselektronik – alles wurde darauf ausgelegt, Ihren Aufenthalt so angenehm wie möglich zu gestalten.

Für das Hausboot wurde ein 50 PS Außenbordmotor verbaut, wofür ein Sportbootführerschein Binnen benötigt wird. Jedoch können Sie das Hausboot führerscheinfrei mieten, wenn Sie nicht im Besitz eines Sportbootführerschein Binnen sind, in diesem Fall können Sie bei uns den Charterschein machen. Weitere Informationen dazu, finden Sie auf unserer Seite: Charterschein.

Bugstahlruder und Heckstrahlruder unterstützen den Freizeit-Kapitän, das Wende- oder Aufstoppmanöver wird so erleichtert.

Das Hausboot „Yva“ verfügt über eine wunderschöne Dachterrasse. Diese ist nicht nur ein Ort der Aussicht, sondern auch des Komforts. Bequeme und stilvolle Loungemöbel schaffen eine exklusive Atmosphäre, in der Entspannung und Genuss an erster Stelle stehen. Von der Dachterrasse aus eröffnet sich ein 360-Grad-Panoramablick auf die malerischen Gewässer, Ufer und den Himmel.

Erleben Sie die Schönheit des Müritznationalparks aus einer neuen Perspektive und lassen Sie sich von der Ruhe des Wassers verzaubern.

Die mecklenburgische Seenplatte rund um die Müritz ist eine der schönsten Wasserlandschaften Europas. Ein Hausbooturlaub auf der Müritz verspricht unberührte Natur, verträumte Seen und idyllische Ufer. Mit Yva haben Sie die Freiheit, diese einzigartige Region in Ihrem eigenen Tempo zu erkunden.

Erleben Sie unvergessliche Momente auf dem Wasser, indem Sie noch heute Ihr Hausboot mieten. Perfekt für Familienurlaube oder Ausflüge mit Freunden – buchen Sie jetzt und sichern Sie sich Ihr eigenes schwimmendes Zuhause.

Buchungskalender

Boots-Informationen

Bootsname:

Yva

Personen:

4+2

Länge/Breite:

10,70m/4,50m

Tiefgang:

1,00 m

Brückendurchfahrtshöhe:

4,05m

Baujahr:

2025

Motorart:

1x Außenborder (50PS)

Bug-/Heckstrahlruder:

ja/ja

Klimaanlage/Heizung/Kamin:

ja/ja/nein

Solar:

ja

Inverter:

ja

12 V Steckdose:

ja

Tanks:

200/400/400
(Kraftstoff/Abwasser/Frischwasser)

WC/Innen-/Außendusche:

ja/ja/nein

Haustier(e):

ja

Inventarliste

Artikel

Anzahl

Besen

1

Bettdecke + Kissen

6

Bootshaken

2

Bordbuch

1

Bratpfanne

2

Brotkorb

1

Butterdose

1

Deckcouch

1

Deckstisch

1

Deckstühle

2

Dosenöffner

1

Eierbecher

6

Eimer

1

Festmacherleine

4

flache Teller

6

Flaschenfender

8

Flaschenöffner

1

Frühstücksteller

6

Gabel

6

Gasanzünder

1

Handfeger/Schaufel

1

Kaffeebecher

6

Kaffeedose

1

Kaffeemaschine

1

Kleiderbügel

6

Kochlöffel Set

1

Korkenzieher

1

Kugelfender

0

Landstromkabel

1

Löffel

6

Messbecher

1

Messer

6

Messerset

1

Mückenschutz vor Fenster

0

Mülleimer

2

Müslischalen

6

Pfannenwender

1

Rettungsring

1

Salatbesteck

1

Schere

1

Schifffahrtskarte

1

Schnapsgläser

6

Schneebesen

1

Schneidebrett

1

Schrubber

1

Schwimmwesten

6

Schüssel

1

Sektgläser

6

Sieb

1

Siebstempelkanne

0

Spaghettizange

1

Spielesammlung

1

Staubsauger

1

Suppenkelle

1

Tablett

1

Teelöffel

6

Thermoskanne

0

tiefe Teller

6

Toaster

1

Topflappen

2

Topfset

1

Vorratsbehälter Set

1

Wasser-/Biergläser

6

Wasserkessel

0

Wasserkocher

1

Weingläser

6

Zuckerdose

1
Mittwoch, 28. Februar 2024

Yva: Ihr exklusives Hausboot auf der Müritz - Ein unvergessliches Hausbootabenteuer auf dem Wasser

Willkommen an Bord von Yva, Ihrem privaten Rückzugsort auf den malerischen Gewässern der Mecklenburgischen Seenplatte. Tauchen Sie ein in einen unvergleichlichen Hausbooturlaub, bei dem Luxus, Komfort und die Schönheit der Natur zu einem einzigartigen Erlebnis verschmelzen.

Dieses wunderschöne Hausboot verfügt über zwei Schlafräume. Das Haupt Schlafzimmer ist eine Wohlfühloase mit einem komfortablen Doppelbett (1,40m x 2m), das Platz für süße Träume bietet. Die hochwertige Matratze und stilvolle Einrichtung schaffen eine Atmosphäre der Entspannung. Das zweite Schlafzimmer ist mit einem stabilen Doppelstockbett ausgestattet. Sie werden die aufregende Perspektive vom oberen Doppelstockbett lieben, während Sie sich auf einen erholsamen Schlaf freuen können.

Der offene Wohn- Essbereich lädt zum Verweilen ein und ist mit einem Schlafsofa ausgestattet, dass mit wenig Handgriffen zu zwei weiteren Schlafplätzen umgebaut werden kann. Somit bietet das Hausboot Platz für bis zu 6 Personen.

Des Weiteren befindet sich auf dem Hausboot eine Wohnküche, die über einen Kühlschrank, Gefrierfach, Herd und einem Geschirrspüler verfügt. Die Küche ist mit allem ausgestattet, was Sie für die Zubereitung Ihrer Lieblingsspeisen benötigen. Kochen Sie gemeinsam, genießen Sie Mahlzeiten und tauschen Sie Geschichten aus. Ihnen soll es auf Ihrem Traumhausboot an nichts fehlen.

An Bord befindet sich ein Badezimmer mit WC, Waschtisch und einer Dusche.

Die großzügigen Panoramafenster im offenen Wohn- und Essbereich ermöglichen Ihnen einen atemberaubenden Blick auf die idyllischen Wasserwege der mecklenburgischen Seenplatte mit der Müritz, dem Plauer See, dem Kölpinsee oder auch der Havel. Genießen Sie die Natur aus einer einzigartigen Perspektive.

Für die heißen Sommertage verfügt das Hausboot über eine Klimaanlage.

Für wohlige Wärme ist eine Fußbodenheizung verbaut.

Yva ist mit modernster Technologie ausgestattet, um Ihnen ein sorgenfreies und komfortables Hausbooterlebnis zu bieten. Von Rückfahrkamera bis zur Unterhaltungselektronik – alles wurde darauf ausgelegt, Ihren Aufenthalt so angenehm wie möglich zu gestalten.

Für das Hausboot wurde ein 50 PS Außenbordmotor verbaut, wofür ein Sportbootführerschein Binnen benötigt wird. Jedoch können Sie das Hausboot führerscheinfrei mieten, wenn Sie nicht im Besitz eines Sportbootführerschein Binnen sind, in diesem Fall können Sie bei uns den Charterschein machen. Weitere Informationen dazu, finden Sie auf unserer Seite: Charterschein.

Bugstahlruder und Heckstrahlruder unterstützen den Freizeit-Kapitän, das Wende- oder Aufstoppmanöver wird so erleichtert.

Das Hausboot „Yva“ verfügt über eine wunderschöne Dachterrasse. Diese ist nicht nur ein Ort der Aussicht, sondern auch des Komforts. Bequeme und stilvolle Loungemöbel schaffen eine exklusive Atmosphäre, in der Entspannung und Genuss an erster Stelle stehen. Von der Dachterrasse aus eröffnet sich ein 360-Grad-Panoramablick auf die malerischen Gewässer, Ufer und den Himmel.

Erleben Sie die Schönheit des Müritznationalparks aus einer neuen Perspektive und lassen Sie sich von der Ruhe des Wassers verzaubern.

Die mecklenburgische Seenplatte rund um die Müritz ist eine der schönsten Wasserlandschaften Europas. Ein Hausbooturlaub auf der Müritz verspricht unberührte Natur, verträumte Seen und idyllische Ufer. Mit Yva haben Sie die Freiheit, diese einzigartige Region in Ihrem eigenen Tempo zu erkunden.

Erleben Sie unvergessliche Momente auf dem Wasser, indem Sie noch heute Ihr Hausboot mieten. Perfekt für Familienurlaube oder Ausflüge mit Freunden – buchen Sie jetzt und sichern Sie sich Ihr eigenes schwimmendes Zuhause.

MÜRITZ-captain | Alle Rechte unter Vorbehalt.

Partner of YachtSys – XML Data provider for Yacht Charter

Wir verwenden Cookies um unsere Website zu optimieren und Ihnen das bestmögliche Online-Erlebnis zu bieten. Mit dem Klick auf „Alle erlauben“ erklären Sie sich damit einverstanden. Weiterführende Informationen und die Möglichkeit, einzelne Cookies zuzulassen oder sie zu deaktivieren, erhalten Sie in unserer Datenschutzerklärung und in den Cookie-Einstellungen.